Дизайн интерьера квартиры Art Soul

Дизайн интерьера квартиры Art Soul
Год реализации:
2022
Площадь:
67 м²
Высота потолков:
2,72 м
Концепция: мелодия света: интерьер для музы и хозяйки

Этот проект — не просто перепланировка, а партитура для новой жизни. Он создан для молодой девушки любящей искусство и особенно музыку !

Главной задачей было превратить двухкомнатную квартиру в просторное трёхкомнатное жилище, где каждая нота быта звучит чисто и гармонично.

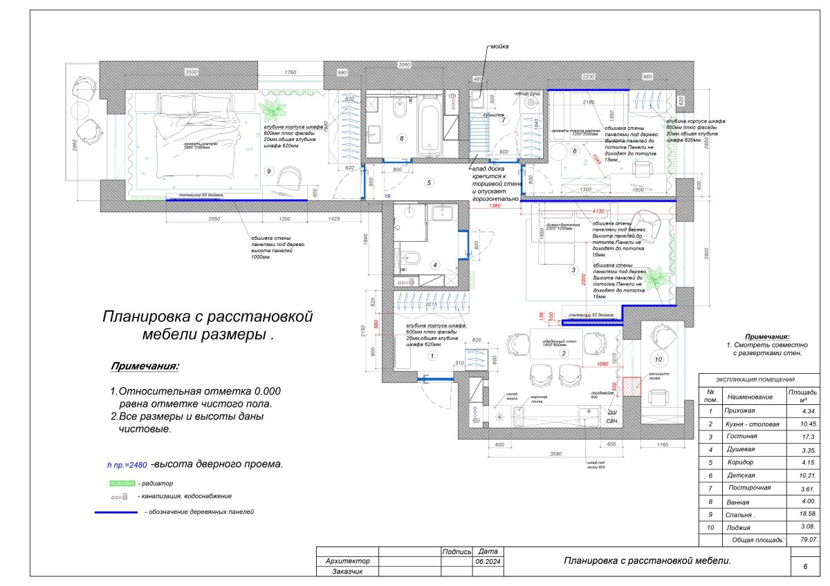
Планировка квартиры и дизайн-проект

Дизайнерское решение

Пространство зазвучало по-новому: вместо тесных комнат появились функциональные и уютные зоны — просторная кухня, слитая в единый аккорд с гостиной, гостевая комната для друзей-меломанов и большая, личная спальня-святилище, где можно укрыться от мира в творческих мыслях или сладких снах.

О стиле: что такое неоклассика?

Это современный взгляд на вечную элегантность. Неоклассика отказывается от пышности и вычурности в пользу чистых линий, сдержанной симметрии и атмосферы спокойного достоинства. Она берет у классики её пропорции, чувство меры и благородные детали, но облачает их в современные материалы и лаконичные формы. Это не театр, а изысканная фоновая музыка для жизни.

В нашем случае камертон задают лепные карнизы и молдинги на стенах — тонкие, как паутинка, они рисуют на светлом фоне изящный графический рисунок, создавая лёгкий архитектурный ритм. Им вторит современная мебель с прямыми силуэтами, мягкими бархатными обивками и блеском латунной фурнитуры. Она не перегружает пространство, а расставляет в нём комфортные акценты.

Сердцем квартиры стала объединённая кухня гостиная . На месте лоджии теперь царит стильная обеденная группа, над которой, словно хрустальная нота, парит изящный подвесной светильник. Он не просто освещает, а акцентирует это место сбора, где за чашкой кофе рождаются идеи.

Материалы поют хором в природных оттенках:

  • Санузлы, отделаны модной плиткой под мрамор с прожилками серого и бежевого, создавая ощущение прохлады и чистоты.
  • По всей квартире стелется тёплое, тихое покрытие пола — кварцвинил в стиле натурального дуба. Его фактура и оттенок дарят уют и связывают все помещения воедино.
  • Стены выдержаны в светлой, молочной гамме, служа идеальным фоном для картин хозяйки и её собственного яркого образа.
  • Неожиданный, но гармоничный аккорд прозвучал в гостевой комнате. Здесь, на фоне общей светлой симфонии, появляются акцентные оттенки — возможно, приглушённый терракотовый, задавая помещению свой, более камерный и эмоциональный настрой.

Итог — не просто интерьер, а персональная вселенная.

Это пространство, где классическая гармония встречается с современной свободой, где свет льётся, как мелодия, а каждый уголок вдохновляет на творчество. Здесь красивой хозяйке легко быть собой: музицировать, рисовать, принимать гостей или просто наслаждаться тишиной своего идеально организованного, светлого мира.

6 причин доверить нам дизайн
Опытная команда
Опытная команда
Стаж специалистов 10+ лет, реализовали более 250+ успешных проектов.
Гарантия
Гарантия
Официальный договор, поддержка 6 месяцев после сдачи проекта.
Скидки за объем
Скидки за объем
Снижение цены для объектов свыше 100 м² или при комбинации дизайна с ремонтом.
Полное сопровождение 
Полное сопровождение 
От замеров до авторского надзора – вы не участвуете в рутине.
Индивидуальный подход
Индивидуальный подход
Разработка концепции под личные предпочтения клиента.
Строительная экспертиза
Строительная экспертиза
Проверяем и не предлагаем решений, которые невозможно реализовать технически.
точность расчета
87%
Консультация специалиста
Мы свяжемся с вами в течение 5 минут
Заказать расчет
Мы свяжемся с вами в течение 5 минут
Заказать расчет
Мы свяжемся с вами в течение 5 минут
Позвонить Написать в Telegram Написать в Viber Написать в WhatSapp Написать в Instagram